疑問:3層辦公建筑,內廊敞開樓梯間入口處需要設擋煙垂壁嗎?各地圖紙設計不一。
1. 《擋煙垂壁》31條:用不燃材料制成,垂直安裝在建筑3~頂棚+橫梁+或吊頂下,能在火災時形成一定的蓄煙空間的擋煙分隔設施。設置防煙分區使用。
2. 《擋煙垂壁》41條:安裝方式:2~固定式+活動式,材料剛度:2~柔性+剛性。剛性單節寬度≯2.0m,柔性單節寬度≯4.0m。
3. 《擋煙垂壁》512條:材料:5~不燃材料+金屬板材≮0.8mm熔點≮700+不燃無機復合板≮10mm+無機纖維織物拉力600N300N+防火玻璃。
4. 《煙標》421條:設置排煙系統的場所或部位應采用擋煙垂壁、結構梁及隔墻等劃分防煙分區。防煙分區不應跨越防火分區。(個人注:依據此內廊敞開樓梯間應設。)
5. 《煙標》423條:設置排煙設施的建筑內,敞開樓梯和自動扶梯穿越樓板的開口部應設置擋煙垂壁等設施。(個人注:主要指開口部位,上下同一防火分區也要設擋煙垂壁。)《煙標圖示》:
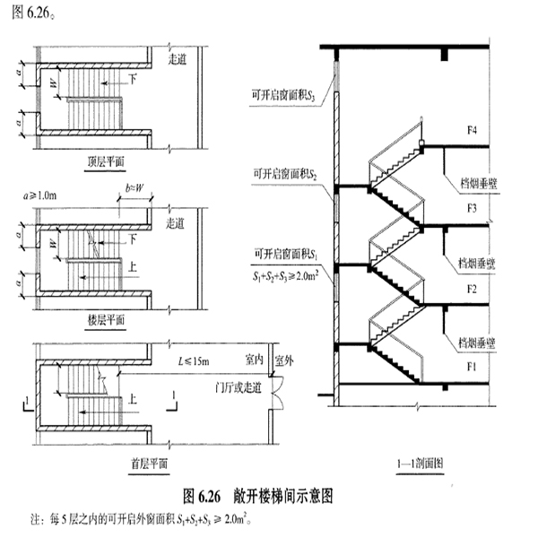
6. 《建規指南》641條P319:疏散樓梯間應具有較高防火、防煙性能…如下圖示敞開樓梯間設擋煙垂壁。
7. 《建規》532條文說明:對于本規范允許采用敞開樓梯間的建筑,如5層或5層以下的教學建筑、普通辦公建筑等,該敞開樓梯間可以不按上、下層相連通的開口考慮。5513條文說明:對于多層建筑,在我國華東、華南和西南部分地區,采用敞開式外廊的集體宿舍、教學、辦公等建筑,當其中與敞開式外廊相連通的樓梯間,由于具有較好的防止煙氣進入的條件,可以不設置封閉樓梯間。(個人注:此情況敞開樓梯間較好防煙,防火分區不按上下相通。)
總結:內廊式辦公等敞開樓梯間應設擋煙垂壁(《建規指南》圖示)。